不動産売買専門店 マエダハウジング不動産

  • 購入したい
    • ログイン
    • マンションを探す
    • 一戸建てを探す
    • 土地を探す
    • LINE ID連携のご紹介
    • マエダハウジング不動産の住宅ローン相談
    • 分譲地 アンティエールシリーズ
    • マエダハウジング不動産が購入の時に選ばれる7つの理由
    • 不動産購入の流れ
    • 会員規約
    • 外部サービス(SNS)アカウント連携利用規約
  • リノベーション
    • リノベーションセットプラン
    • リノベーション施工事例
    • お客様の声
    • リノベーションQ&A
    • 中古を買ってリノベーションしよう
    • リノベーションの流れ
    • リノベーション不動産の失敗しない選び方
    • リノベーション成功のための交渉ポイント
    • 中古不動産購入+リノベーション体験談
  • 売却したい
    • 売却査定・売却相場
    • 広島の相続した不動産売却をお考えの方へ
    • マエダハウジング不動産の不動産売却
    • マエダハウジング不動産のLINE査定
    • 広島都市圏の不動産相場情報
    • マエダハウジング不動産が売却の時に選ばれる7つの理由
    • 不動産売却の流れ
    • マエダハウジングの買取
    • 私のマンション売却体験談
    • 住み替えの基礎知識
  • 会社概要
    • 店舗情報
    • スタッフ紹介
    • オンライン面談・内覧サービス
    • 来店予約
    • イベント・セミナー情報
    • イベント・セミナー予約
    • 電子書籍問い合わせ
    • お知らせ
    • 不動産ニュースコラム
    • 会社案内
    • お問い合わせ
  • 簡易査定
  • 来店予約
  • 会員登録
  • ログイン

0120-935934 営業時間:10:00~18:00 定休日:毎週火曜日・水曜日

  • 査定依頼
  • 来店予約
  • 会員登録
  • ログイン
  • 探す
  • 来店予約
  • TEL
  • 簡易査定
  • LINEで査定
  • MENU
  • トップページ
  • 購入したい
    • ログイン
    • マンションを探す
    • 一戸建てを探す
    • 土地を探す
    • LINE ID連携のご紹介
    • マエダハウジング不動産の住宅ローン相談
    • 分譲地 アンティエールシリーズ
    • マエダハウジング不動産が購入の時に選ばれる7つの理由
    • 不動産購入の流れ
    • 会員規約
    • 外部サービス(SNS)アカウント連携利用規約
  • リノベーション
    • リノベーションセットプラン
    • リノベーション施工事例
    • お客様の声
    • リノベーションQ&A
    • 中古を買ってリノベーションしよう
    • リノベーションの流れ
    • リノベーション不動産の失敗しない選び方
    • リノベーション成功のための交渉ポイント
    • 中古不動産購入+リノベーション体験談
  • 売却したい
    • 売却査定・売却相場
    • 広島の相続した不動産売却をお考えの方へ
    • マエダハウジング不動産の不動産売却
    • マエダハウジング不動産のLINE査定
    • 広島都市圏の不動産相場情報
    • マエダハウジング不動産が売却の時に選ばれる7つの理由
    • 不動産売却の流れ
    • マエダハウジングの買取
    • 私のマンション売却体験談
    • 住み替えの基礎知識
  • 会社概要
    • 店舗情報
    • スタッフ紹介
    • オンライン面談・内覧サービス
    • 来店予約
    • イベント・セミナー情報
    • イベント・セミナー予約
    • 電子書籍問い合わせ
    • お知らせ
    • 不動産ニュースコラム
    • 会社案内
    • お問い合わせ
  • 会員登録・ログイン
    • 新規会員登録
    • ログイン
    • お気に入りの不動産を見る
  • サイトマップ
  1. ホーム
  2. 不動産検索
  3. 中古一戸建て
  4. 広島県
  5. 広島市安芸区
  6. 阿戸小
  7. 800万円代

LINEで通知をご希望の方

  • この物件の値下り情報を通知

中古一戸建て 価格変更
広島県広島市安芸区阿戸町

価格:800万円

  • お気に入り不動産を見る
  • お気に入りに追加
  • 資料請求・見学予約

画像

  • 広島県広島市安芸区阿戸町
  • 広島県広島市安芸区阿戸町
  • 広島県広島市安芸区阿戸町
  • 広島県広島市安芸区阿戸町
  • 広島県広島市安芸区阿戸町
  • 広島県広島市安芸区阿戸町
  • 広島県広島市安芸区阿戸町
  • 広島県広島市安芸区阿戸町
  • 広島県広島市安芸区阿戸町

所在地・交通

所在地 広島県広島市安芸区阿戸町 
最寄駅  
最寄バス停 長戸路橋 停歩 2分
小学校校区 阿戸小
中学校校区 阿戸中

※学校区は住所から自動判定したものであり、保証できる情報ではございません。正確な学校区はお問い合わせ下さい。

お問い合わせフォームはこちら

※地図は「広島県広島市安芸区阿戸町」の不動産所在地付近を表示しています。実際の場所はお問い合わせください。

お問い合わせフォームはこちら

お買い物

病院・クリニック

銀行

教育

不動産概要

種目 中古一戸建て
土地面積288.29㎡
私道面積
建ぺい率/容積率
都市計画
接道状況  北約3.7m
地目
土地権利 所有権のみ
地勢
用途地域 都市計画区域外
現況 空家
条件等
取引態様 仲介
種目 中古一戸建て
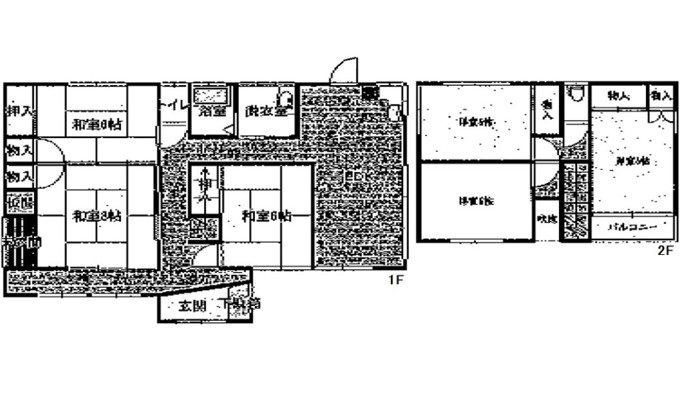
間取り 6室以上
間取り内訳
土地面積288.29㎡
私道面積
建物面積 125.03㎡
建物構造規模 木造瓦葺2階建
築年月(竣工月) 1985年1月
駐車場有無 2~3台可(車種による)
建ぺい率/容積率
都市計画
接道状況  北約3.7m
地目
土地権利 所有権のみ
地勢
用途地域 都市計画区域外
現況 空家
取引態様 仲介
種目 中古一戸建て
間取り 6室以上
間取り内訳
土地面積288.29㎡
私道面積
建物面積 125.03㎡
建物構造規模 木造瓦葺2階建
築年月(竣工月) 1985年1月
駐車場有無 2~3台可(車種による)
建ぺい率/容積率
都市計画
接道状況  北約3.7m
地目
土地権利 所有権のみ
地勢
用途地域 都市計画区域外
現況 空家
取引態様 仲介
種目 中古一戸建て
間取り 6室以上
間取り内訳
専有面積
建物構造 木造瓦葺2階建
バルコニー面積
向き
階数
所在階
築年月(竣工月) 1985年1月
駐車場有無 2~3台可(車種による)
駐車場料金
総戸数
管理費
積立金
土地権利 所有権のみ
管理形態/方式
用途地域 都市計画区域外
現況 空家
取引態様 仲介

この不動産のお支払い例

総額:0万円(税込)

この不動産の支払い例

※上記支払例の借入条件:金利1.025%、
借入総額万円、借入期間35年

頭金0円 / ボーナス払い0円

月々:円

土地+新築セットプランの
場合のお支払い例

参考価格:0万円(税込)

土地+新築セットプラン
の支払い例

頭金0円 / ボーナス払い0円

月々:円

※上記支払例の借入条件:金利1.025%、
借入総額万円、借入期間35年

※外構工事、その他購入に関わる諸費用は含まれておりません。

この不動産の支払い例建物+土地代込み

総額:0万円(税込)

不動産の支払い例

※上記支払例の借入条件:金利1.025%、
借入総額万円、借入期間35年

頭金0円 / ボーナス払い0円

月々:円

購入と同時に
リノベした場合のお支払い例

参考価格:0万円(税込)

不動産価格+リノベ価格
の支払い例

頭金0円 / ボーナス払い0円

月々:円

※上記支払例の借入条件:金利1.025%、
借入総額万円、借入期間35年

※価格は参考価格であり、実際の価格はリノベーション内容・面積によって異なります。
詳しくはお問い合わせください。

この不動産の支払い例

総額:0万円(税込)

不動産の支払い例

※上記支払例の借入条件:金利1.025%、
借入総額万円、借入期間35年

頭金0円 / ボーナス払い0円

月々:円

購入と同時に
リノベした場合のお支払い例

参考価格:0万円(税込)

不動産価格+リノベ価格
の支払い例

頭金0円 / ボーナス払い0円

月々:円

※上記支払例の借入条件:金利1.025%、
借入総額万円、借入期間35年

※価格は参考価格であり、実際の価格はリノベーション内容・面積によって異なります。
詳しくはお問い合わせください。

この不動産のお支払い例

参考価格:0万円(税込)

不動産の支払い例

※上記支払例の借入条件:金利1.025%、
借入総額万円、借入期間35年

頭金0円 / ボーナス払い0円

月々:円

取引条件等

引渡し 相談

その他

設備 トイレ2ヶ所、駐車場2台分
特徴
特記 リノベーション向き
諸条件・相談
情報登録日 2026年4月1日
情報更新予定日 2026年4月8日
不動産番号 76697
備考

この不動産に似た不動産をピックアップしました!

  • 広島県広島市安芸区阿戸町 [830万円][4DK]
  • 広島県広島市安芸区中野一丁目 [900万円][2DK]
  • 広島県広島市安芸区中野三丁目 [980万円][5LDK]
  • 広島県広島市安芸区中野二丁目 [3,980万円][4LDK]
  • 広島県広島市安芸区中野四丁目 [400万円][4DK]
  • 広島県広島市安芸区中野四丁目 [680万円][5DK]
  • お気に入りに追加
  • 資料請求・見学予約
  • LINEで問い合わせる

ページの先頭へ

広島市の不動産売買仲介、新築建売、注文住宅、リノベーションなど不動産探しはマエダハウジング不動産へ。
不動産仲介、注文住宅の建築、リノベーションなどを行っております。

  • LINE
  • instagram
  • facebook
  • YOUTUBE
  • Pintarest
  • 株式会社マエダハウジングコーポレートサイト
  • マエダハウジングの新築住宅
  • マエダハウジンググループ
  • 広島で暮らしを楽しむ人のためのウェブマガジン『くらうど』
  • 広島リノスタイル
  • 貸会議室お申込み
  • 水まわりリフォーム専門店「リフレ」
  • 島根不動産

不動産売買専門店 マエダハウジング不動産

0120-935934

0120-935934

営業時間:10:00~18:00
定休日:毎週火曜日・水曜日

株式会社 マエダハウジング不動産
〒730-0013
広島市中区八丁堀10-14 八丁堀マエダビル3階

  • 査定依頼
  • 来店予約
  • 会員登録
  • ログイン
購入したい
ログイン
マンションを探す
一戸建てを探す
土地を探す
LINE ID連携のご紹介
マエダハウジング不動産の住宅ローン相談
分譲地 アンティエールシリーズ
マエダハウジング不動産が購入の時に選ばれる7つの理由
不動産購入の流れ
新築セットプラン
新築施工事例
お客様の声
新着不動産登録情報
会員規約
外部サービス(SNS)アカウント連携利用規約
リノベーション
リノベーションセットプラン
リノベーション施工事例
お客様の声
リノベーションQ&A
中古を買ってリノベーションしよう
リノベーションの流れ
リノベーション不動産の失敗しない選び方
リノベーション成功のための交渉ポイント
中古不動産購入+リノベーション体験談
売却したい
売却査定・売却相場
広島の相続した不動産売却をお考えの方へ
マエダハウジング不動産の不動産売却
マエダハウジング不動産のLINE査定
広島都市圏の不動産相場情報
マエダハウジング不動産が売却の時に選ばれる7つの理由
不動産売却の流れ
マエダハウジングの買取
私のマンション売却体験談
住み替えの基礎知識
会社概要
店舗情報
スタッフ紹介
オンライン面談・内覧サービス
来店予約
イベント・セミナー情報
イベント・セミナー予約
電子書籍問い合わせ
お知らせ
不動産ニュースコラム
会社案内
お問い合わせ
サイトマップ
プライバシーポリシー

Copyright © マエダハウジング不動産. All Rights Reserved.